
SCY Drum Type Pre-cleaner
Model: SCY Series
Power: 0.75/1.5kw
Capacity: 15-50t/h
Certification: CE, SGS, ISO
Product Description
RICHI SCY Series Drum Type Pre-cleaner is widely applied to granular material cleaning in industries like flour mills, feed mill, grain storage, etc.The machine can be used at the intake section of the processing plant or silos to eliminate coarse impurities like pebbles, paper, sticks, wood pieces, leaves, cobs, etc. Our company supplies Drum Pre Cleaner in various models for use in cleaning of different products like seeds grains, etc.Drum Pre-cleaner is directly sold by the richi machinery factory. The factory price is trustworthy!
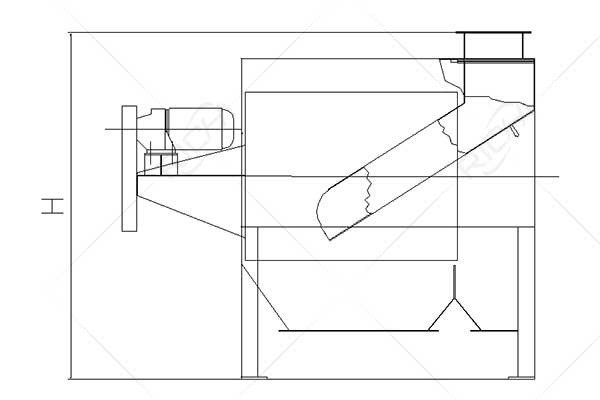
working principle
Henan Richi Machinery SCY series drum type pre-cleaner is mainly composed of box, frame, inclined drum, transmission device, support device and other components. When the material falls on the rotating drum from the feeding port, the material is in full contact with the drum and rolls on the drum due to the action of the rotating drum. The material smaller than the screen hole passes through the inner drum and falls on the outer drum. The materials that cannot pass through the sieve holes are gradually pushed toward the outlet end by the rotation of the inclined drum, and finally they are collected by the hopper to enter the curtain crusher through the material pipe to continue to be broken. The materials falling on the outer drum are continuously screened by the outer drum. Fine powder and fine particles smaller than the sieve holes pass through the sieve holes and fall into the hopper and enter the granulation bin through the material pipe. Collected by the hopper through the material pipe to enter the next process.
-
- SCY series drum type pre-cleaner is mainly composed of box, frame, inclined drum, transmission device, support device and other components.The machine can be used at the intake section of the processing plant or silos to eliminate coarse impurities like pebbles, paper, sticks, wood pieces, leaves, cobs, etc.
SCY Drum Type Pre-cleaner Details
Features
1. Low noise, low energy consumption and stable operation.
2. The access door makes the daily maintenance and repair much easier and simple.
3. here are monitor windows in the side and top of the machine, the operator could easily observe the running condition.
4. We equip the most suitable size of the sieve, to fit different grain raw material, to get the best effect.
5. High capacity, low consumption, small floor space.
Parameter
| Model | SCY63 | SCY80 | SCY80*2 | SCY100 |
| Power | 0.75kw | 0.75kw | 0.75kw | 1.5kw |
| Capacity | 15-30t/h | 20-40t/h | 20-40t/h | 30-50t/h |
Related Cases
related News
Here you can submit any questions and we will get back to you as soon as possible. We will not disclose the information you submit to anyone, please rest assured.
Copyright© 2022 Richi Machinery. All rights reserved. Site Map









Product Center
Get Latest Price